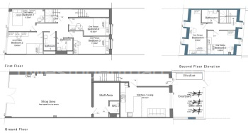
Other Facilities:
Brand New & BILLS INCLUDED, Generous Double Bedroom, Open plan communal space, Excellent highstreet location, Close to both UWE & UOB, Terrace, with seating area, Amenities on your door step, Transport links within walking distance,